imagem cabeçalho skyline marrom

Interiores

“Minha prática como arquiteto foi tomando o rumo do Design de Interiores, e se mostrou uma das atividades que mais tenho exercido. Muito deste tempo foi trabalhando no escritório da arquiteta Marcia Lima, o Marcia Lima Arquitetura, no Rio de Janeiro. Desde a criação, projeto executivo , até a arrumação final. Há também trabalhos em co-autoria com outros profissionais, e alguns feitos sozinho.”

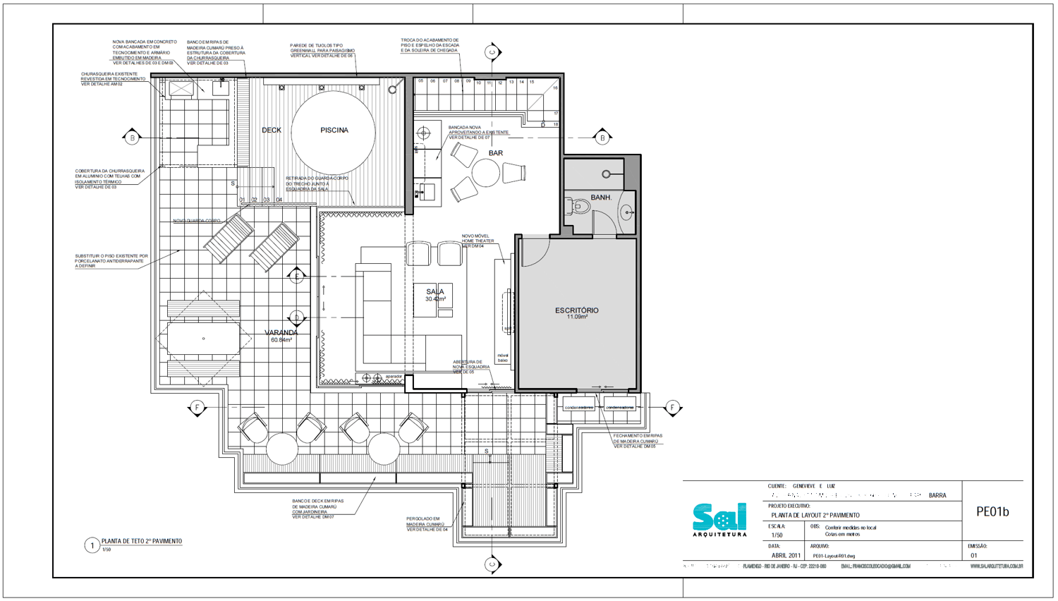
Projeto: Cobertura Le Monde

Descrição:

Trabalho em coautoria com as arquitetas Luciana Lima e Priscila Marinho, que na época assinavam como Sal Arquitetura.

Ficha Técnica:

Local: Condomínio Le Monde, Barra da Tijuca, Rio de Janeiro

Ano: 2011

Projeto: Apartamento Barra da Tijuca

“Este é um dos trabalhos com Arquitetura Residencial  feitos pelo Escritório Marcia Lima Arquitetura, do qual fiz parte por mais de uma década.”

Descrição:

Projeto de interiores  de apartamento para família de quatro membros.

Ficha Técnica:

Projeto e acompanhamento de execução:

Coordenação Marcia Lima

Equipe: Francisco Leocádio , Shirley Gaygher,

Roberta Maranhão e outros

Ano: 2010

Local: Barra da Tijuca, Rio de Janeiro

Projeto: Loja KZ Motos

Descrição:

Projeto de arquitetura de interiores para a loja KZ Motos.

Ficha Técnica:

Equipe de arquitetura

Francisco Leocádio, Luciana Lima e Priscila

Ano: 2009

Local: Rua Olegário Maciel, Barra da Tijuca, Rio de Janeiro

Projeto: Loja Arte de Vestir

Descrição:

Projeto com estudo e detalhamento de loja de moda feminina – Arte de Vestir.

Ficha Técnica:

Local: Shopping Barra World, Rio de Janeiro

Ano: 2002

Fotos: Francisco Leocádio